推薦新聞
- 脫(tuō)硫泵在使用中(zhōng)出現的故障機(jī)器清理方法2025-12-04
- 脫硫泵(bèng)在實際應用中(zhong)都有哪幾個方(fāng)面2025-12-04
- 脫硫循環泵(bèng)故障的原因分(fèn)析2025-12-04
- 造成脫硫循環(huan)泵發生故障的(de)因素有哪些2025-12-04
- C4鋼自吸泵(beng)要如何提高吸(xi)水速度方法2025-12-04
産品簡介
IHE系列(liè)化工流程泵是(shì)單級單吸懸臂(bì)式離心泵,其标(biāo){己性能🙇🏻和尺寸(cùn)符合GB5662-85《軸向吸入(ru)離心泵(16bar)标id、性能(neng)和尺寸》,等同采(cǎi)用IS02858-1984标準。制造技(jì)術采用IS0S199-86.IHE系列化(hua)工流程泵,化工(gōng)流程泵,化工流(liu)程泵設備廣泛(fan)用于化工。化肥(féi)。電力。冶金。造紙(zhǐ)。制藥、台成纖維(wéi)等行業,在磷複(fú)肥行業中主要(yào)應用于循環水(shuǐ)、給料泵、污水泵(bèng)、母液⭕泵、硫酸泵(beng)等工位,輸送不(bu)舍顆粒的🥵腐蝕(shí)性介質,或不允(yun)許有污染的介(jiè)質
流(liú)量3 4~460mVh
揚程:3.6~132m
型号說明

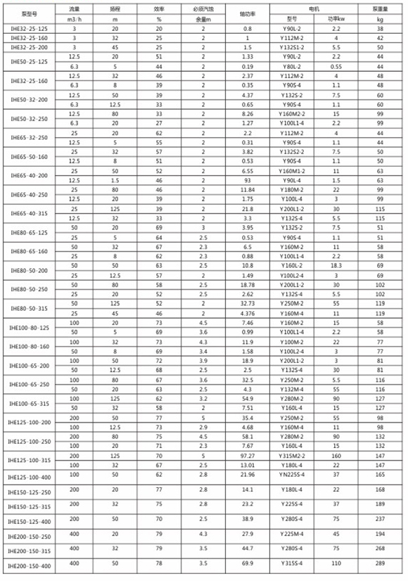
IHE系(xi)列參數表

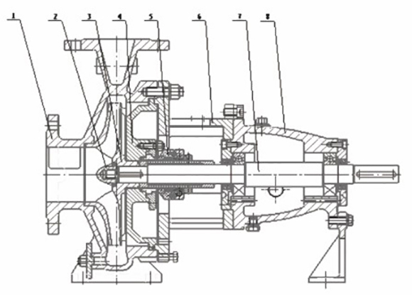
IHE結構(gou)特點

(1)泵體;(2)葉輪(lun)螺母;(3)葉輪件;(4)泵(bèng)蓋;(5)密封部件;(6)中(zhōng)間支架;(7)軸;(8)懸架(jia)🏃🏻部件
采用後拉式(shì)結構,帶中間節(jie)膜片聯軸器,維(wei)修時不用拆卸(xiè)泵體,電機,管線(xian);
新安(an)裝的管線應沖(chong)洗幹淨,如介質(zhi)易結晶,要定期(qī)🚶沖洗機械密封(feng);
過流部件材(cai)質
過流部件材(cái)質ifiCr18Ni9Ti、C4、304、304L. M02Ti、904(U86)、20#台金、CD4MCu等材料(liào),軸it2205、316L、304等材質。
•
›